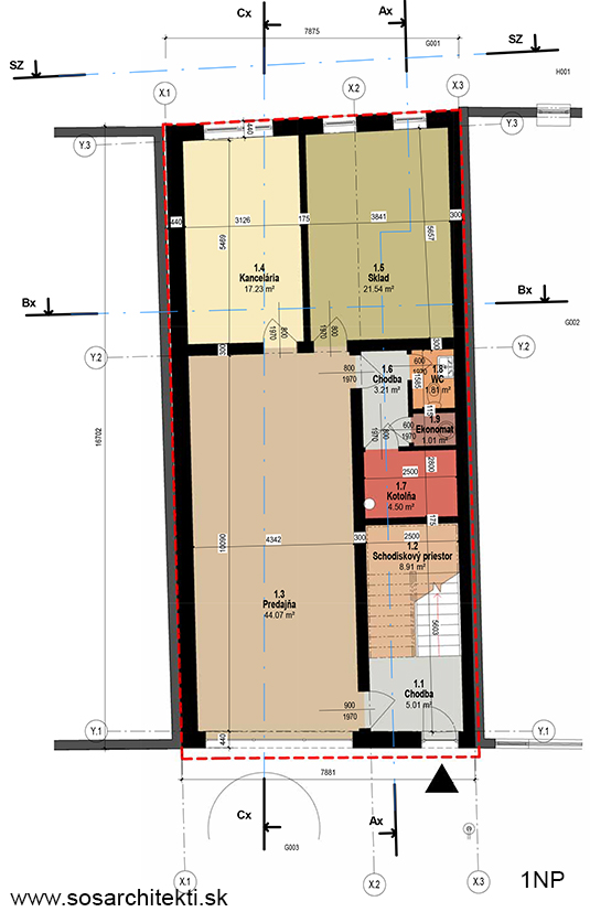
Predmetom projektu je návrh novostavby polyfunkčného objektu do nezastavanej prieluky na Metodovej ul. v Preśove. Návrh prezentuje snahu autorov architektonickým riešením prispieť k tvorbe prostredia kvalitnou súčasnou architektúrou čo sa týka výrazu, mierky, proporcie, dispozície a použitých materiálov reflektujúc potreby budúceho užívateľa a rešpektujúc zásady pamiatkovej starostlivosti, územný plán mesta, lokalitu a urbanistický kontext priestoru, v ktorom sa objekt nachádza