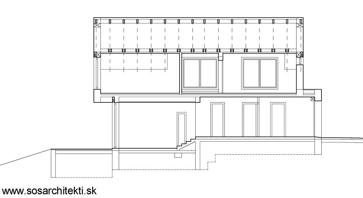
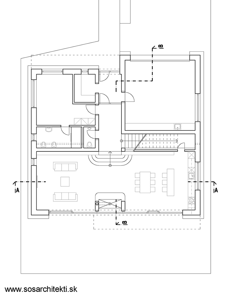
Návrh a osadenie domu rešpektuje "Génia Loci" (Duch miesta) lokality a predstavy 4 člennej rodiny o bývaní.
SOS architekti architektonický ateliér Ing. arch. Peter Steiniger Ing. arch. Zuzana Molčan Ing. arch. Martin Sokol Ing. Mária Drapp Ing. Maroš Maroši Ing. Jana Steinigerová